Capannone in vendita

Strambino, Viale Guglielmo Marconi
€ 190.000
6 locali 6 locali
600 Mq 600 Mq
2 bagni 2 bagni

Capannone in vendita

Strambino, Viale Guglielmo Marconi

Descrizione annuncio

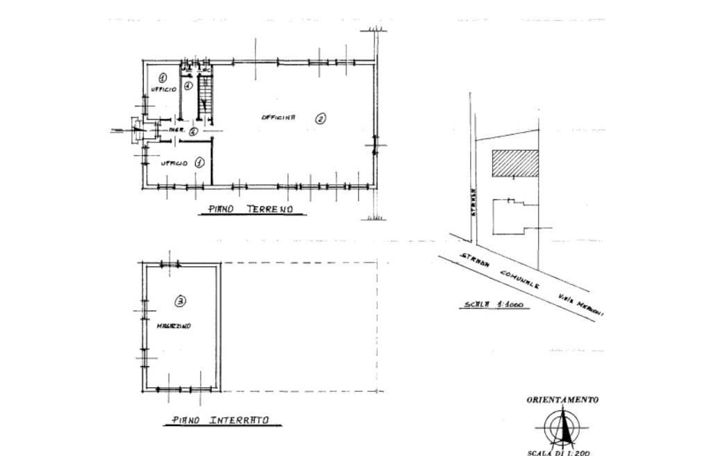
CAPANNONE IN VENDITA - STRAMBINO

In zona tranquilla ma facilmente raggiungibile, proponiamo in vendita capannone artigianale di circa 500mq, soluzione versatile e funzionale, ideale per uso magazzino, laboratorio, deposito o per piccole attività produttive che necessitano di spazi ben organizzati e pronti all’uso.

L’immobile si presenta in buone condizioni generali ed è composto da tre magazzini comunicanti, ciascuno dotato di portone di accesso indipendente, caratteristica che garantisce massima flessibilità operativa e consente di suddividere le aree di lavoro, stoccaggio o produzione in modo efficiente, anche per utilizzi differenziati.

A completare la proprietà troviamo due uffici, ideali per la gestione amministrativa e commerciale dell’attività, una cantina utile come spazio archivio o deposito aggiuntivo, e due servizi igienici, che rendono la struttura comoda e pienamente funzionale per il personale.

È inoltre presente un terreno privato di pertinenza, elemento di grande valore, aumentando ulteriormente la praticità dell’immobile.

Una proposta interessante per artigiani e imprese che cercano uno spazio operativo adattabile, ben distribuito e subito utilizzabile.

Caratteristiche principali:

- Superficie interna: circa 500 mq

- Terreno esterno

- Contesto tranquillo e comodo ai principali collegamenti stradali

Soluzione ideale per artigiani, piccole imprese o attività di logistica leggera che necessitano di spazi funzionali e ben organizzati.

Mostra tutto

Nelle vicinanze

Trasporto pubblico Trasporto pubblico
Strambino
Strambino
1,1 Km
Romano (v. Circ.Ovest/v. S.Grato)
Romano (v. Circ.Ovest/v. S.Grato)
380 m
Strambino (P.za Don Luigi Vesco)
Strambino (P.za Don Luigi Vesco)
600 m
Ricariche auto elettriche Ricariche auto elettriche
Scarmagno Via Romano | EnelX Fast
2,5 Km
Scuole Scuole
Scuole
620 m
Scuola Primaria Statale "M. Oscar A. Romero"
910 m
Scuola Primaria Statale Adriano Olivetti
2,6 Km
Farmacia Farmacia
Farmacia San Solutore
90 m
Farmacia Fabbi
600 m
Farmacia
2,7 Km
Supermercati Supermercati
Strambino 2
550 m
Negozi Negozi
Negozi
420 m
Alimentari
850 m
Compro Qui
1,9 Km
Panetteria Alimentari
2,7 Km
Bar Bar
Circolo Arci La Fagiuolesca
2,3 Km
Ristoranti Ristoranti
Ristorante C'era Una Volta
410 m
Pizzeria Hong Kong
510 m
Pizzeria Vittoria
850 m
Il Cappello Verde
880 m
College Bar Griglieria Pizzeria
1,0 Km
Mostra tutto

Caratteristiche

Rif.:
61171037
Piano:
Terra di 1
Totale piani:
1
Posti auto:
5
Condizionamento:
Assente
Ascensore:
No
Mostra tutto
Prezzo Prezzo
€ 190.000
Rata mutuo Rata mutuo
€ 898 / mese
Spese annue Spese annue
€ 0
Proponi il tuo prezzoProponi il tuo prezzo

Classe Energetica

Questo immobile è esente da classe energetica
Anno di costruzione:
1977
Riscaldamento:
Autonomo
Tipo impianto:
A radiatori
Tipo alimentazione:
GPL

Ti interessa visionare l'immobile?

Fissa un appuntamento  Fissa un appuntamento

Richiedi informazioni

Clicca su Leggi per aprire l'informativa
* Questi campi sono obbligatori

Calcola il tuo mutuo

Semplice e senza impegno
Anticipo

( % )
Mutuo

( % )

pochi semplici passi

inserisci i tuoi dati
Questionario completato
Grazie per aver richiesto un appuntamento senza impegno con un nostro Consulente del Credito e Assicurativo.

Hai inserito correttamente tutti i dati necessari e a breve riceverai una e-mail con un link da convalidare per inviare i tuoi dati.
Affiliato
Studio Canavese Per Le Imprese Sas
Via Casale, 2/C 10015 Ivrea (TO)

Il nostro staff


  • Davide Bertino
    Affiliato

  • Ophelia Mariotti
    Collaboratrice

  • Riccardo Ronza
    Affiliato

  • Giulia Trinchero
    Coordinatrice

  • Elena Raso
    Affiliata
Via Casale, 2/C 10015 Ivrea (TO)
Zona: Canavese
Mostra su mappa
Orari: Lunedì: 09:00 - 12:30 / 14:30 - 19:00 Martedì: 09:00 - 12:30 / 14:30 - 19:00 Mercoledì: 09:00 - 12:30 / 14:30 - 19:00 Giovedì: 09:00 - 12:30 / 14:30 - 19:00 Venerdì: 09:00 - 12:30 / 14:30 - 19:00 Sabato: 09:00 - 12:30 / Pomeriggio su appuntamento Domenica: Chiuso
Affiliato
Studio Canavese Per Le Imprese Sas
Via Casale, 2/C 10015 Ivrea (TO)

2026 Tecnocasa Franchising S.p.A. - P. IVA 08365160152 - Via Monte Bianco 60/A 20089 Rozzano (MI). Ogni agenzia ha un proprio titolare ed è autonoma. Privacy policy | Policy utilizzo | Cookie policy