Capannone in affitto

Ozegna, Via Fratelli Berra
8 locali 8 locali
2300 Mq 2300 Mq
2 bagni 2 bagni

Capannone in affitto

Ozegna, Via Fratelli Berra

Descrizione annuncio

CAPANNONE IN AFFITTO A OZEGNA – VIA FRATELLI BERRA

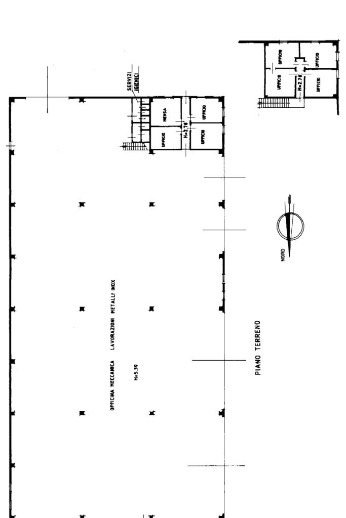
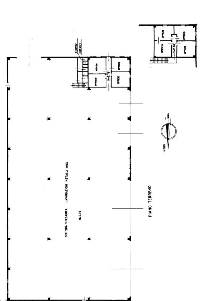
In posizione comoda e ben visibile, caratterizzata da un intenso passaggio veicolare, proponiamo in affitto un ampio capannone ad uso industriale/artigianale di circa 1200 mq interni e 7.000 mq esterni, completo di uffici e area esterna. Una soluzione ideale per chi desidera dare massima visibilità alla propria attività e operare in un contesto facilmente raggiungibile.

L’immobile si distingue per la razionale distribuzione degli spazi interni, progettati per garantire funzionalità, efficienza operativa e flessibilità d’uso. La struttura è composta da due grandi magazzini comunicanti, perfetti per attività di stoccaggio, produzione o logistica, oltre a quattro uffici luminosi, ideali per la gestione amministrativa e commerciale, una comoda area mensa per il personale e due servizi igienici.

Gli ambienti ufficio sono dotati di impianto di riscaldamento e climatizzazione, assicurando comfort in ogni stagione.

L’immobile si presta a molteplici destinazioni d’uso, risultando particolarmente adatto ad attività artigianali, produttive, commerciali e logistiche, nonché a sedi operative e depositi con necessità di spazi ampi e ben organizzati.

La presenza dell’area esterna rappresenta un ulteriore valore aggiunto, utile per manovra, carico/scarico o parcheggi, rendendo l’immobile ancora più funzionale.

CARATTERISTICHE PRINCIPALI:

- Superficie interna: circa 1200 mq

-due servizi igienici

-due magazzini comunicanti

- Riscaldamento e climatizzazione all'interno degli uffici

Mostra tutto

Nelle vicinanze

Trasporto pubblico Trasporto pubblico
Rivarolo Canavese
Rivarolo Canavese
2,7 Km
Ozegna (Palazzetto dello Sport)
Ozegna (Palazzetto dello Sport)
560 m
Ozegna (bv. Segheria)
Ozegna (bv. Segheria)
670 m
Ricariche auto elettriche Ricariche auto elettriche
Agliè Castello | EnelX
2,3 Km
AGLIÈ Campodoneo | ENELX
2,5 Km
Agliè Gula | EnelX
2,5 Km
Scuole Scuole
Scuola elementare Giacomo Mattè-Trucco
330 m
Immacolata Concezione
2,5 Km
Scuola Primaria Statale di Agliè
2,6 Km
Istituto SS. Annunziata
2,8 Km
Scuola Elementare
2,8 Km
Farmacia Farmacia
Farmacia
600 m
Parafarmacia Mazzocchi
2,4 Km
Farmacia Garelli
2,5 Km
Farma Free
2,5 Km
Farmacia Ducale
2,6 Km
Supermercati Supermercati
Supermercato Pam
2,5 Km
Il Gigante
2,6 Km
IN's
2,8 Km
Offertissima Market
2,9 Km
Negozi Negozi
Dal cesto del grano
70 m
Camiceria Trè Re
240 m
I Segreti dell'intimo
250 m
Qui c'è
630 m
Panetteria Pasticceria Alfonsi
2,2 Km
Bar Bar
Palabar
580 m
Caffetteria Pasticceria Gianni
660 m
Antica società operaia
670 m
Havana Bar
2,0 Km
Al Bistrot
2,7 Km
Ristoranti Ristoranti
Monnalisa
420 m
Agriturismo Cascina La Desiderata
1,5 Km
Solo Pizza
2,3 Km
Antica Locanda dell'Orco
2,3 Km
La Mandragola pizza da asporto
2,4 Km
Mostra tutto

Caratteristiche

Rif.:
61164226
Piano:
Basso di 1
Totale piani:
1
Condizionamento:
Autonomo
Ascensore:
No
Riscaldamento:
Autonomo
Mostra tutto
Prezzo Prezzo
€ 3.600 / mese
Spese annue Spese annue
€ 0
Anche in vendita a

Classe Energetica

Questo immobile è esente da classe energetica
Anno di costruzione:
2000
Riscaldamento:
Autonomo
Tipo impianto:
Ad aria
Tipo alimentazione:
Metano

Ti interessa visionare l'immobile?

Fissa un appuntamento  Fissa un appuntamento

Richiedi informazioni

Clicca su Leggi per aprire l'informativa
* Questi campi sono obbligatori
Affiliato
Studio Canavese Per Le Imprese Sas
Via Casale, 2/C 10015 Ivrea (TO)

Il nostro staff


  • Davide Bertino
    Affiliato

  • Ophelia Mariotti
    Collaboratrice

  • Riccardo Ronza
    Affiliato

  • Giulia Trinchero
    Coordinatrice

  • Elena Raso
    Affiliata
Via Casale, 2/C 10015 Ivrea (TO)
Zona: Canavese
Mostra su mappa
Orari: Lunedì: 09:00 - 12:30 / 14:30 - 19:00 Martedì: 09:00 - 12:30 / 14:30 - 19:00 Mercoledì: 09:00 - 12:30 / 14:30 - 19:00 Giovedì: 09:00 - 12:30 / 14:30 - 19:00 Venerdì: 09:00 - 12:30 / 14:30 - 19:00 Sabato: 09:00 - 12:30 / Pomeriggio su appuntamento Domenica: Chiuso
Affiliato
Studio Canavese Per Le Imprese Sas
Via Casale, 2/C 10015 Ivrea (TO)

2026 Tecnocasa Franchising S.p.A. - P. IVA 08365160152 - Via Monte Bianco 60/A 20089 Rozzano (MI). Ogni agenzia ha un proprio titolare ed è autonoma. Privacy policy | Policy utilizzo | Cookie policy