Capannone in vendita

Oglianico, Via Del Maglio Antico
€ 87.000
Prezzo aggiornato
4 locali 4 locali
350 Mq 350 Mq
1 bagno 1 bagno

Capannone in vendita

Oglianico, Via Del Maglio Antico

Descrizione annuncio

CAPANNONE IN VENDITA - OGLIANICO

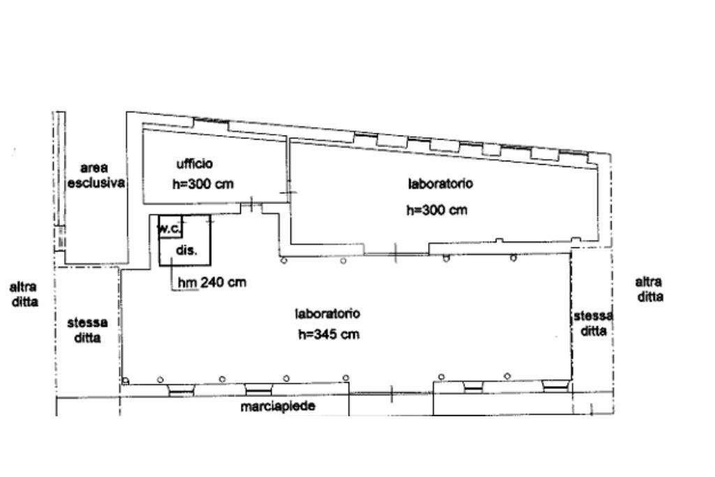
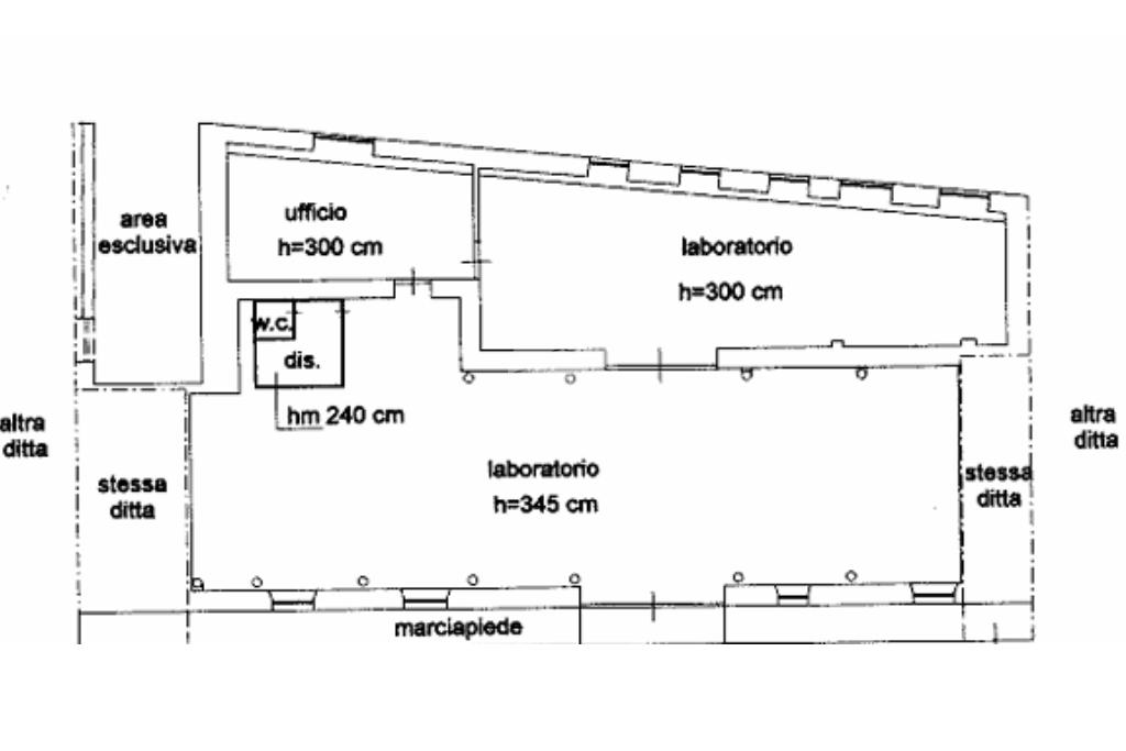
Proponiamo in vendita un capannone artigianale/industriale di circa 350 mq complessivi, situato in posizione strategica, a pochi minuti da Rivarolo Canavese.


L’immobile si distingue per la versatilità degli spazi e la possibilità di personalizzare parte della struttura in base alle esigenze produttive o logistiche.

Il fabbricato è composto da una porzione completamente ultimata di circa 200 mq al piano terra, articolata in ambiente produttivo principale, locale magazzino, ufficio e servizio igienico, mentre la seconda porzione di circa 150 mq al primo piano, attualmente al grezzo, può essere adattata a molteplici utilizzi come area produttiva, laboratorio o deposito.

CARATTERISTICHE PRINCIPALI :

- Superficie complessiva: circa 300 mqAltezza interna adatta ad attività artigianali e produttive.

- Spazi flessibili e adattabili a diverse destinazioni d’uso

- Posizione comoda a pochi minuti da Rivarolo Canavese

Mostra tutto

Nelle vicinanze

Trasporto pubblico Trasporto pubblico
Favria-Oglianico
Favria-Oglianico
310 m
Salassa - San Ponso
Salassa - San Ponso
1,6 Km
Favria-Oglianico
Favria-Oglianico
270 m
Favria (Stazione)
Favria (Stazione)
310 m
Scuole Scuole
I.C. Favria C.se - plesso primaria di Busano
2,5 Km
Scuole
2,7 Km
Scuola Media Statale "Guido Gozzano"
2,7 Km
Istituto SS. Annunziata
2,8 Km
Scuola Elementare
2,8 Km
Farmacia Farmacia
Farmacia
850 m
Farma Free
2,6 Km
Farmacia Centrale
3,0 Km
Supermercati Supermercati
IN's
2,4 Km
Il Gigante
2,6 Km
Supermercato Pam
2,8 Km
Offertissima Market
3,0 Km
Negozi Negozi
Negozi
620 m
Il fornetto
890 m
Atzeni
2,3 Km
Robe di Kappa
2,6 Km
Oltre
2,6 Km
Bar Bar
Il piccolo bar
710 m
Bar La rosa bianca
1,0 Km
Ristoranti Ristoranti
La Sgarbatella
610 m
Agriturismo Cascina San Giovanni
1,5 Km
Crazy Pizza
2,3 Km
Xing Du
2,4 Km
Oggi Pizza
2,6 Km
Mostra tutto

Caratteristiche

Rif.:
61139929
Totale piani:
1
Posti auto:
5
Condizionamento:
Assente
Ascensore:
No
Riscaldamento:
Assente
Mostra tutto
Prezzo Prezzo
€ 87.000
Rata mutuo Rata mutuo
€ 410 / mese
Spese annue Spese annue
€ 0
Proponi il tuo prezzoProponi il tuo prezzo

Altre caratteristiche

Classe Energetica

Questo immobile è esente da classe energetica
Anno di costruzione:
1960
Riscaldamento:
Assente

Prezzo ridotto di €1 (4%%)

Ti interessa visionare l'immobile?

Fissa un appuntamento  Fissa un appuntamento

Richiedi informazioni

Clicca su Leggi per aprire l'informativa
* Questi campi sono obbligatori

Calcola il tuo mutuo

Semplice e senza impegno
Anticipo

( % )
Mutuo

( % )

pochi semplici passi

inserisci i tuoi dati
Questionario completato
Grazie per aver richiesto un appuntamento senza impegno con un nostro Consulente del Credito e Assicurativo.

Hai inserito correttamente tutti i dati necessari e a breve riceverai una e-mail con un link da convalidare per inviare i tuoi dati.
Affiliato
Studio Canavese Per Le Imprese Sas
Via Casale, 2/C 10015 Ivrea (TO)

Il nostro staff


  • Davide Bertino
    Affiliato

  • Ophelia Mariotti
    Collaboratrice

  • Riccardo Ronza
    Affiliato

  • Elena Raso
    Affiliata
Via Casale, 2/C 10015 Ivrea (TO)
Zona: Canavese
Mostra su mappa
Orari: Lunedì: 09:00 - 12:30 / 14:30 - 19:00 Martedì: 09:00 - 12:30 / 14:30 - 19:00 Mercoledì: 09:00 - 12:30 / 14:30 - 19:00 Giovedì: 09:00 - 12:30 / 14:30 - 19:00 Venerdì: 09:00 - 12:30 / 14:30 - 19:00 Sabato: 09:00 - 12:30 / Pomeriggio su appuntamento Domenica: Chiuso
Affiliato
Studio Canavese Per Le Imprese Sas
Via Casale, 2/C 10015 Ivrea (TO)

2026 Tecnocasa Franchising S.p.A. - P. IVA 08365160152 - Via Monte Bianco 60/A 20089 Rozzano (MI). Ogni agenzia ha un proprio titolare ed è autonoma. Privacy policy | Policy utilizzo | Cookie policy