Ufficio in vendita

Ivrea, Corso Massimo D'Azeglio
€ 70.000
3 locali 3 locali
70 Mq 70 Mq
1 bagno 1 bagno

Ufficio in vendita

Ivrea, Corso Massimo D'Azeglio

Descrizione annuncio

UFFICIO IN VENDITA – CENTRO IVREA

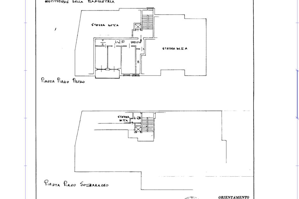
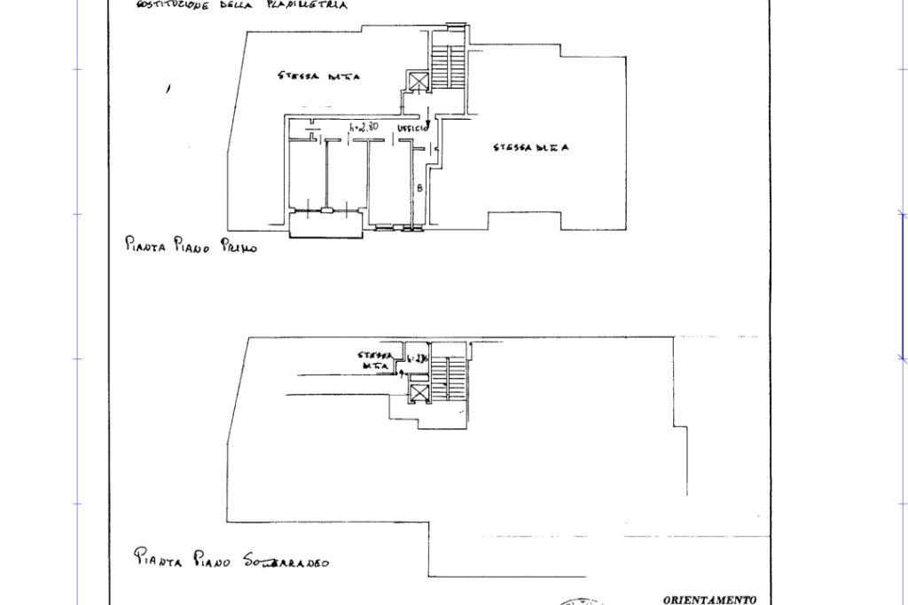
Nel pieno centro di Ivrea, in una zona di forte passaggio e grande visibilità, proponiamo in vendita un ufficio di 70 mq, ideale per professionisti, studi associati o attività che desiderano una sede funzionale e facilmente raggiungibile. L’immobile offre spazi ben organizzati e pronti all’uso, inseriti in un contesto strategico che valorizza l’attività svolta al suo interno.

Caratteristiche principali:

- Superficie: 70 mq

- Uso: ufficio

- Servizi igienici: bagno finestrato con antibagno

- Servizi esterni: parcheggio pubblico nelle immediate vicinanze

Posizione:

Posizione centrale e altamente visibile con un'ottima accessibilità per clienti e collaboratori. Per la sua vicinanza a tutti i principali servizi del centro è una soluzione ideale per chi cerca un ufficio pratico e rappresentativo, interessante per chi desidera investire o trasferire la propria attività in una zona strategica di Ivrea.

Mostra tutto

Nelle vicinanze

Trasporto pubblico Trasporto pubblico
Ivrea
Ivrea
840 m
Ivrea (C.so M. d'Azeglio/P.za Freguglia)
Ivrea (C.so M. d'Azeglio/P.za Freguglia)
70 m
Ivrea (Circonvallazione/v. Monte Stella)
Ivrea (Circonvallazione/v. Monte Stella)
230 m
Ricariche auto elettriche Ricariche auto elettriche
Duferco Re Umberto
140 m
Conad Ivrea Corso Vercelli | EnelX
2,0 Km
Scuole Scuole
Scuola Primaria Statale Massimo d'Azeglio
60 m
Scuola Secondaria di Primo grado Leonardo Da Vinci (Succursale)
260 m
Liceo Classico Statale Carlo Botta
420 m
Istituto Tecnico Commerciale e per Geometri Giovanni Cena
570 m
Liceo Scientifico Statale Antonio Gramsci
730 m
Farmacia Farmacia
Farmacia Rocchietta
90 m
Farmacia Stragiotti
180 m
Farmacia Fasano
460 m
farmacia Dora s.n.c.
830 m
Farmacia Linda
860 m
Ospedali Ospedali
Ospedale Civile Ivrea
700 m
Clinica Eporediese
1,3 Km
Supermercati Supermercati
Carrefour Express
380 m
Lidl
690 m
Bennet
910 m
Ekom
1,6 Km
Conad
1,9 Km
Negozi Negozi
Club della Maglia
50 m
Personlity Boutique
170 m
Fifth Avenue
170 m
Panificio Scarlatta
180 m
Panetteria, Creperia - Il Rondolino
180 m
Bar Bar
Belushi
170 m
Bar Modina
1,7 Km
Bar Smeraldo
1,8 Km
Enoteca Bar AStor
1,9 Km
Pasticceria Pitti
2,9 Km
Ristoranti Ristoranti
Pizzeria da Romano
170 m
Pizzeria La Lucciola
230 m
Trattoria dei Tigli
320 m
Blupum
320 m
La Bussola
380 m
Mostra tutto

Caratteristiche

Rif.:
61156991
Piano:
1 di 4 con ascensore (Piano basso)
Balconi:
1
Condizionamento:
Autonomo
Ascensore:
Riscaldamento:
Centralizzato
Mostra tutto
Prezzo Prezzo
€ 70.000
Rata mutuo Rata mutuo
€ 330 / mese
Spese annue Spese annue
€ 1.200
Proponi il tuo prezzoProponi il tuo prezzo

Altre caratteristiche

Classe Energetica

Questo immobile è esente da classe energetica
Anno di costruzione:
1960
Riscaldamento:
Centralizzato
Tipo impianto:
A radiatori
Tipo alimentazione:
Metano

Ti interessa visionare l'immobile?

Fissa un appuntamento  Fissa un appuntamento

Richiedi informazioni

Clicca su Leggi per aprire l'informativa
* Questi campi sono obbligatori

Calcola il tuo mutuo

Semplice e senza impegno
Anticipo

( % )
Mutuo

( % )

pochi semplici passi

inserisci i tuoi dati
Questionario completato
Grazie per aver richiesto un appuntamento senza impegno con un nostro Consulente del Credito e Assicurativo.

Hai inserito correttamente tutti i dati necessari e a breve riceverai una e-mail con un link da convalidare per inviare i tuoi dati.
Affiliato
Studio Canavese Per Le Imprese Sas
Via Casale, 2/C 10015 Ivrea (TO)

Il nostro staff


  • Davide Bertino
    Affiliato

  • Ophelia Mariotti
    Collaboratrice

  • Riccardo Ronza
    Affiliato

  • Giulia Trinchero
    Coordinatrice

  • Elena Raso
    Affiliata
Via Casale, 2/C 10015 Ivrea (TO)
Zona: Canavese
Mostra su mappa
Orari: Lunedì: 09:00 - 12:30 / 14:30 - 19:00 Martedì: 09:00 - 12:30 / 14:30 - 19:00 Mercoledì: 09:00 - 12:30 / 14:30 - 19:00 Giovedì: 09:00 - 12:30 / 14:30 - 19:00 Venerdì: 09:00 - 12:30 / 14:30 - 19:00 Sabato: 09:00 - 12:30 / Pomeriggio su appuntamento Domenica: Chiuso
Affiliato
Studio Canavese Per Le Imprese Sas
Via Casale, 2/C 10015 Ivrea (TO)

2026 Tecnocasa Franchising S.p.A. - P. IVA 08365160152 - Via Monte Bianco 60/A 20089 Rozzano (MI). Ogni agenzia ha un proprio titolare ed è autonoma. Privacy policy | Policy utilizzo | Cookie policy