Capannone in vendita

Ivrea, Via Giuseppe di Vittorio
9 locali 9 locali
1200 Mq 1200 Mq
3 bagni 3 bagni

Capannone in vendita

Ivrea, Via Giuseppe di Vittorio

Descrizione annuncio

CAPANNONE IN VENDITA AD IVREA - VIA GIUSEPPE DI VITTORIO

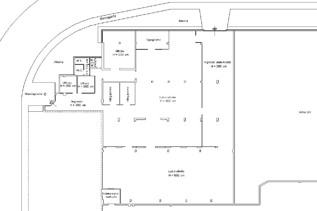
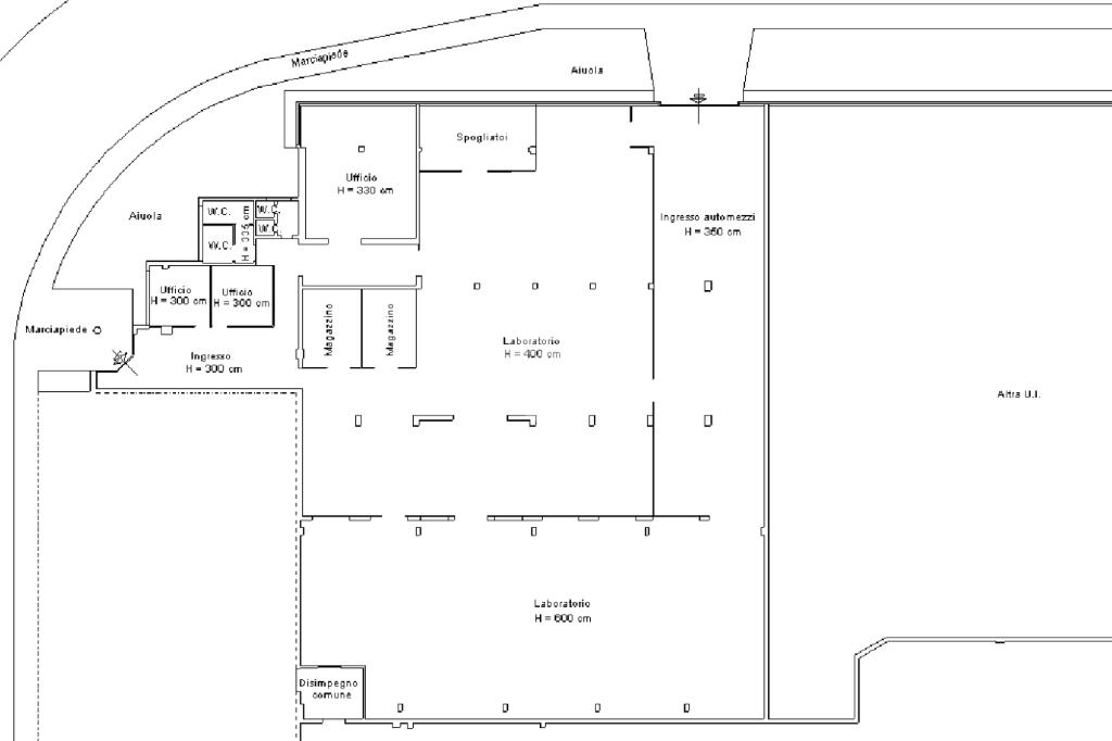
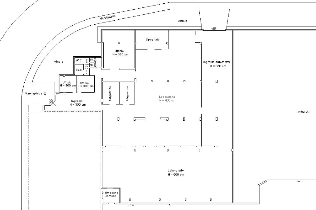
Proponiamo in vendita capannone industriale di circa 1.100 mq, situato in posizione comoda e ben collegata alle principali vie di comunicazione.

L’immobile dispone di un ampio spazio principale, uffici funzionali e servizi igienici. È dotato inoltre di portone carrabile per l’ingresso e l’uscita dei mezzi e di un carro ponte con portata di 3,5 tonnellate, che ne aumentano la praticità e l’efficienza.

Grazie alle sue caratteristiche, la struttura si presta a diverse tipologie di utilizzo, risultando ideale per attività artigianali, produttive o logistiche.

CARATTERISTICHE PRINCIPALI:

Superficie: circa 1.100 mq

Uffici e servizi igienici

Portone carrabile per accesso mezzi

Carro ponte 3,5 tonnellate

Spazi versatili e ben organizzati

Mostra tutto

Nelle vicinanze

Trasporto pubblico Trasporto pubblico
Ivrea
Ivrea
300 m
Ivrea (v. Di Vittorio)
Ivrea (v. Di Vittorio)
50 m
Ivrea (v. Jervis/v. Montenavale)
Ivrea (v. Jervis/v. Montenavale)
130 m
Ricariche auto elettriche Ricariche auto elettriche
Duferco Re Umberto
970 m
Conad Ivrea Corso Vercelli | EnelX
2,9 Km
Scuole Scuole
Formazione ASLTO4
230 m
Accademia dell'hardware e del software libero Adriano Olivetti
240 m
Corso di laurea in Infermieristica
240 m
master in cure palliative e terapia del dolore
250 m
Polo formativo OfficinaH
250 m
Farmacia Farmacia
farmacia Dora s.n.c.
400 m
Farmacia Linda
650 m
Farmacia Fasano
790 m
Farmacia Piovera Dott. Enrico
940 m
Farmacia Borgo Nuovo
1,1 Km
Ospedali Ospedali
Ospedale Civile Ivrea
760 m
Clinica Eporediese
1,3 Km
Supermercati Supermercati
Bennet
520 m
Conad
1,1 Km
Lidl
1,2 Km
Carrefour Express
1,2 Km
A&O
2,0 Km
Negozi Negozi
Giblor's Abbigliamento Professionale
260 m
Negozi
260 m
Panetteria Perin Riz Lucia
350 m
Panificio Scavarda - la Bottega delle Lingue
460 m
Panetteria Monastero
480 m
Bar Bar
Belushi
1,1 Km
Enoteca Bar AStor
1,1 Km
Bar Modina
2,8 Km
Bar Smeraldo
2,9 Km
Ristoranti Ristoranti
Movie Time
280 m
Pizzeria Aquila Nera
290 m
Al Brucio
350 m
Ristorante Aquila Antica
400 m
Cantine Morbelli
450 m
Mostra tutto

Caratteristiche

Rif.:
61115407
Piano:
Terra
Condizionamento:
Assente
Ascensore:
No
Riscaldamento:
Autonomo
Libero:
Mostra tutto
Prezzo Prezzo
€ 298.000
Rata mutuo Rata mutuo
€ 1.409 / mese
Spese annue Spese annue
€ 0
Anche in affitto a
Proponi il tuo prezzoProponi il tuo prezzo

Classe Energetica

Questo immobile è esente da classe energetica
Anno di costruzione:
1950
Riscaldamento:
Autonomo
Tipo impianto:
Ad aria
Tipo alimentazione:
Metano

Ti interessa visionare l'immobile?

Fissa un appuntamento  Fissa un appuntamento

Richiedi informazioni

Clicca su Leggi per aprire l'informativa
* Questi campi sono obbligatori

Calcola il tuo mutuo

Semplice e senza impegno
Anticipo

( % )
Mutuo

( % )

pochi semplici passi

inserisci i tuoi dati
Questionario completato
Grazie per aver richiesto un appuntamento senza impegno con un nostro Consulente del Credito e Assicurativo.

Hai inserito correttamente tutti i dati necessari e a breve riceverai una e-mail con un link da convalidare per inviare i tuoi dati.
Affiliato
Studio Canavese Per Le Imprese Sas
Via Casale, 2/C 10015 Ivrea (TO)

Il nostro staff


  • Davide Bertino
    Affiliato

  • Ophelia Mariotti
    Collaboratrice

  • Riccardo Ronza
    Affiliato

  • Giulia Trinchero
    Coordinatrice

  • Elena Raso
    Affiliata
Via Casale, 2/C 10015 Ivrea (TO)
Zona: Canavese
Mostra su mappa
Orari: Lunedì: 09:00 - 12:30 / 14:30 - 19:00 Martedì: 09:00 - 12:30 / 14:30 - 19:00 Mercoledì: 09:00 - 12:30 / 14:30 - 19:00 Giovedì: 09:00 - 12:30 / 14:30 - 19:00 Venerdì: 09:00 - 12:30 / 14:30 - 19:00 Sabato: 09:00 - 12:30 / Pomeriggio su appuntamento Domenica: Chiuso
Affiliato
Studio Canavese Per Le Imprese Sas
Via Casale, 2/C 10015 Ivrea (TO)

2026 Tecnocasa Franchising S.p.A. - P. IVA 08365160152 - Via Monte Bianco 60/A 20089 Rozzano (MI). Ogni agenzia ha un proprio titolare ed è autonoma. Privacy policy | Policy utilizzo | Cookie policy