Capannone in affitto

Burolo, Via Friuli - Germanina
2 locali 2 locali
550 Mq 550 Mq
2 bagni 2 bagni

Capannone in affitto

Burolo, Via Friuli - Germanina

Descrizione annuncio

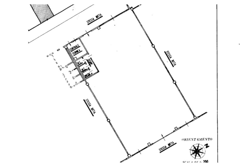
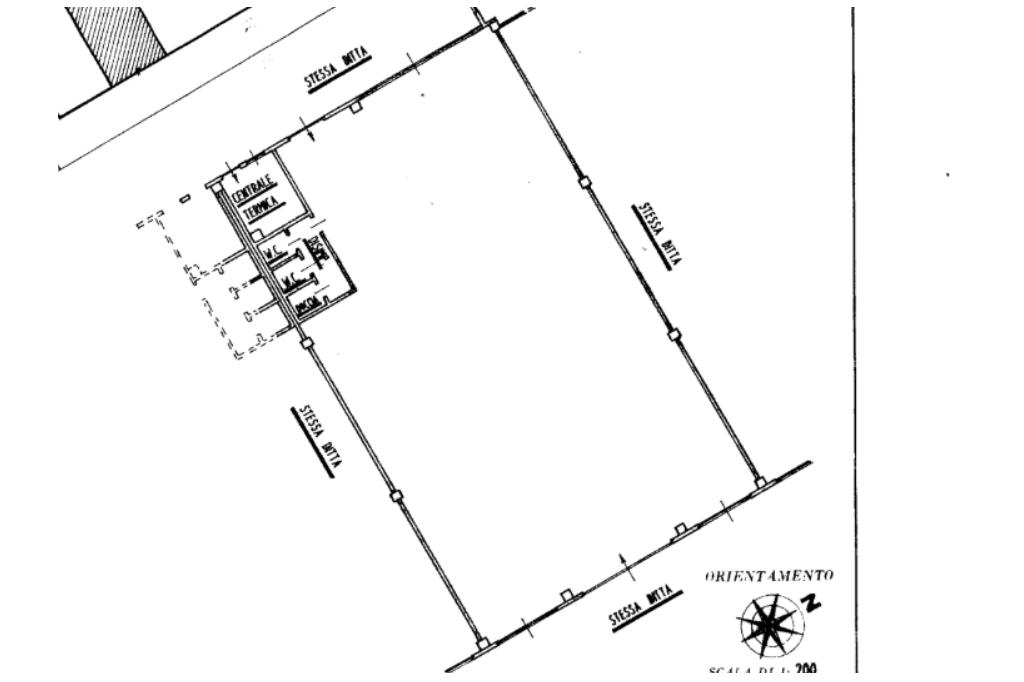
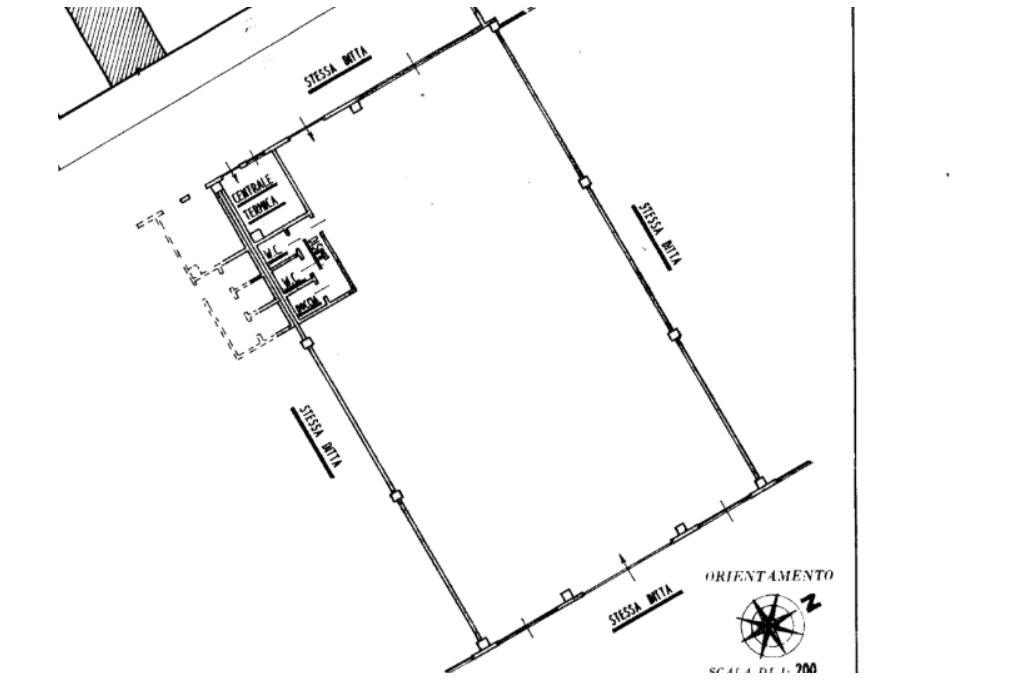
A Burolo, in posizione altamente strategica e a pochi passi dal Carrefour, proponiamo in vendita/affitto un capannone commerciale di 550 mq ad alta visibilità, ideale per attività produttive, artigianali o commerciali. L'immobile gode di un'ottima esposizione su strada con vetrine.

La struttura, facilmente accessibile anche per mezzi, dispone di un comodo ingresso carrabile di 5 metri x 4,30 metri, e un'altezza interna utile alla trave di 5,50 metri, che garantisce ampi spazi operativi.

Caratteristiche principali:

- Superficie ampia con spazi versatili per attività produttive o commerciali

- Ingresso carrabile 5 x 4,30 m

- Altezza interna 5,50 m

- Ufficio dedicato interno alla struttura

- Comodo accesso alla rete autostradale

- A pochi metri dal Carrefour e da altre attività commerciali

- Ripostiglio esterno

Mostra tutto

Nelle vicinanze

Trasporto pubblico Trasporto pubblico
Burolo-Zona Industriale (cascine Bridola)
Burolo-Zona Industriale (cascine Bridola)
240 m
Burolo-Zona Industriale (loc. Forchino)
Burolo-Zona Industriale (loc. Forchino)
360 m
Ricariche auto elettriche Ricariche auto elettriche
Conad Ivrea Corso Vercelli | EnelX
1,3 Km
Bollengo Cossavella | EnelX
1,9 Km
Scuole Scuole
Scuola Statale Primaria Vittorio Bachelet
1,8 Km
Scuola Primaria Statale Fiorana
2,5 Km
Farmacia Farmacia
Farmacia
340 m
Beata Getto
870 m
Parafarmacia Conad
1,3 Km
Farmacia Orlacchio
1,8 Km
Supermercati Supermercati
Penny Market
1,3 Km
Conad
1,3 Km
Ekom
1,7 Km
Lidl
2,3 Km
Carrefour Express
2,6 Km
Negozi Negozi
Facit
200 m
Panetteria e commestibili Alimentari
1,5 Km
Compro Qui Alimentari
1,7 Km
Sorelle Ramonda
2,4 Km
Miguel Moda Maschile
2,5 Km
Bar Bar
Bar Tabacchi
1,5 Km
Bar Smeraldo
1,8 Km
Bar Modina
2,8 Km
Ristoranti Ristoranti
ncf
150 m
Lago Blu
950 m
Ristorante Il Vecchio Mulino
1,3 Km
La Marchesa
1,7 Km
Il mulino delle rose
2,1 Km
Mostra tutto

Caratteristiche

Rif.:
61070175
Posti auto:
40
Condizionamento:
Autonomo
Ascensore:
No
Riscaldamento:
Autonomo
Libero:
No
Mostra tutto
Prezzo Prezzo
€ 2.200 / mese
Spese annue Spese annue
€ 0
Anche in vendita a

Altre caratteristiche

Descrizione dei locali
Bagno Cieco

Classe Energetica

Questo immobile è esente da classe energetica
Anno di costruzione:
2000
Riscaldamento:
Autonomo
Tipo impianto:
A radiatori
Tipo alimentazione:
Metano

Ti interessa visionare l'immobile?

Fissa un appuntamento  Fissa un appuntamento

Richiedi informazioni

Clicca su Leggi per aprire l'informativa
* Questi campi sono obbligatori
Affiliato
Studio Canavese Per Le Imprese Sas
Via Casale, 2/C 10015 Ivrea (TO)

Il nostro staff


  • Davide Bertino
    Affiliato

  • Ophelia Mariotti
    Collaboratrice

  • Riccardo Ronza
    Affiliato

  • Giulia Trinchero
    Coordinatrice

  • Elena Raso
    Affiliata
Via Casale, 2/C 10015 Ivrea (TO)
Zona: Canavese
Mostra su mappa
Orari: Lunedì: 09:00 - 12:30 / 14:30 - 19:00 Martedì: 09:00 - 12:30 / 14:30 - 19:00 Mercoledì: 09:00 - 12:30 / 14:30 - 19:00 Giovedì: 09:00 - 12:30 / 14:30 - 19:00 Venerdì: 09:00 - 12:30 / 14:30 - 19:00 Sabato: 09:00 - 12:30 / Pomeriggio su appuntamento Domenica: Chiuso
Affiliato
Studio Canavese Per Le Imprese Sas
Via Casale, 2/C 10015 Ivrea (TO)

2026 Tecnocasa Franchising S.p.A. - P. IVA 08365160152 - Via Monte Bianco 60/A 20089 Rozzano (MI). Ogni agenzia ha un proprio titolare ed è autonoma. Privacy policy | Policy utilizzo | Cookie policy