Capannone in vendita

Bairo, Strada Raviola
€ 179.000
9 locali 9 locali
500 Mq 500 Mq
2 bagni 2 bagni

Capannone in vendita

Bairo, Strada Raviola

Descrizione annuncio

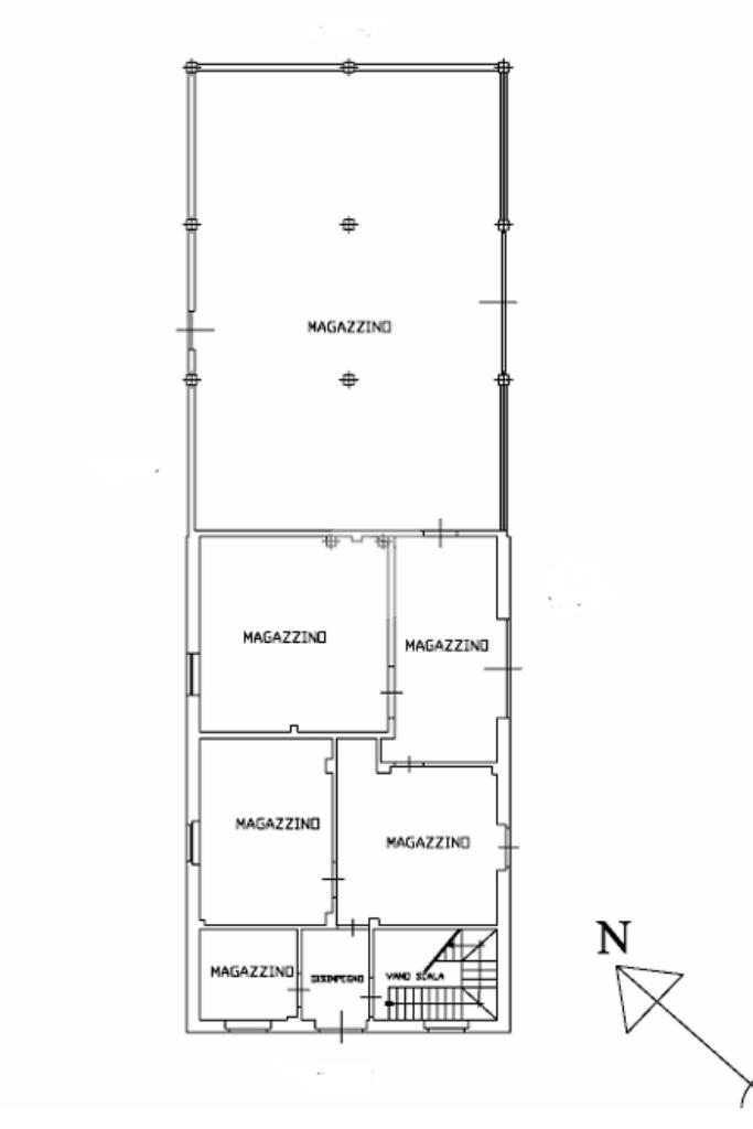
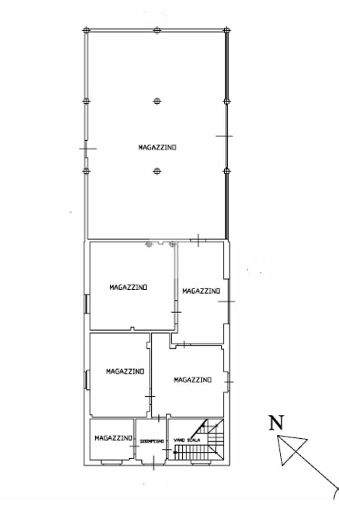
CAPANNONE CON ABITAZIONE IN VENDITA A BAIRO – STRADA RAVIOLA

Proponiamo in vendita capannone di circa 300 mq, con annessa abitazione al piano primo da ultimare, situato in zona tranquilla e ben raggiungibile.

L’immobile offre un ampio magazzino al piano terra, ideale per attività artigianali o di deposito. Al piano superiore è presente un’abitazione di circa 100 mq, attualmente allo stato grezzo, con terrazzo e tre balconi, che permettono di realizzare una comoda e luminosa zona residenziale.

Completano la proprietà un’area esterna di circa 1.800 mq, adatta a parcheggi, spazi di manovra o possibili ampliamenti.

Grazie alla sua conformazione, la soluzione è ideale per chi desidera unire attività lavorativa e abitazione in un’unica struttura.

CARATTERISTICHE PRINCIPALI:

- Superficie capannone: circa 300 mq

- Abitazione al piano primo: circa 100 mq da ultimare

- Terrazzo e tre balconi

- Area esterna: circa 1.800 mq

- Posizione comoda e tranquilla

Mostra tutto

Nelle vicinanze

Trasporto pubblico Trasporto pubblico
Castellamonte (bv. Preparetto)
Castellamonte (bv. Preparetto)
1,2 Km
Castellamonte (cascina La Spina)
Castellamonte (cascina La Spina)
1,3 Km
Ricariche auto elettriche Ricariche auto elettriche
Agliè Gula | EnelX
2,8 Km
Scuole Scuole
Scuola Materna "Giraudo"
1,8 Km
Liceo Artistico Statale Felice Faccio
1,9 Km
Scuola Primaria Statale di Agliè
2,8 Km
Farmacia Farmacia
Farmacia Ducale
1,2 Km
Farmacia Garelli
2,1 Km
Dispensario
2,1 Km
Farmacia Mazzini Dottor Giuseppe
2,3 Km
Ospedali Ospedali
Ospedale Civile di Castellamonte
2,4 Km
Supermercati Supermercati
Dpiù Discount
1,9 Km
Bennet
2,1 Km
Supermercati
2,1 Km
Penny Market Castellamonte
2,4 Km
Negozi Negozi
Ilie
1,8 Km
Voglia Di Pane
2,2 Km
Panetteria Alimentari Piccolo Forno
2,4 Km
Il Botteghino
2,8 Km
Bar Bar
La Cambusa
2,4 Km
Ristoranti Ristoranti
Ristoranti
1,4 Km
Ristorante Passeggeri
1,6 Km
Bar Ristoro da Gelsomina
1,6 Km
Caly
2,3 Km
La Pulperia - Osteria y Bar de Tapas
2,9 Km
Mostra tutto

Caratteristiche

Rif.:
61118907
Piano:
Su più livelli di 1
Totale piani:
1
Posti auto:
5
Balconi:
4
Condizionamento:
Assente
Mostra tutto
Prezzo Prezzo
€ 179.000
Rata mutuo Rata mutuo
€ 846 / mese
Spese annue Spese annue
€ 0
Proponi il tuo prezzoProponi il tuo prezzo

Classe Energetica

Questo immobile è esente da classe energetica
Anno di costruzione:
1980
Riscaldamento:
Assente

Ti interessa visionare l'immobile?

Fissa un appuntamento  Fissa un appuntamento

Richiedi informazioni

Clicca su Leggi per aprire l'informativa
* Questi campi sono obbligatori

Calcola il tuo mutuo

Semplice e senza impegno
Anticipo

( % )
Mutuo

( % )

pochi semplici passi

inserisci i tuoi dati
Questionario completato
Grazie per aver richiesto un appuntamento senza impegno con un nostro Consulente del Credito e Assicurativo.

Hai inserito correttamente tutti i dati necessari e a breve riceverai una e-mail con un link da convalidare per inviare i tuoi dati.
Affiliato
Studio Canavese Per Le Imprese Sas
Via Casale, 2/C 10015 Ivrea (TO)

Il nostro staff


  • Davide Bertino
    Affiliato

  • Ophelia Mariotti
    Collaboratrice

  • Riccardo Ronza
    Affiliato

  • Giulia Trinchero
    Coordinatrice

  • Elena Raso
    Affiliata
Via Casale, 2/C 10015 Ivrea (TO)
Zona: Canavese
Mostra su mappa
Orari: Lunedì: 09:00 - 12:30 / 14:30 - 19:00 Martedì: 09:00 - 12:30 / 14:30 - 19:00 Mercoledì: 09:00 - 12:30 / 14:30 - 19:00 Giovedì: 09:00 - 12:30 / 14:30 - 19:00 Venerdì: 09:00 - 12:30 / 14:30 - 19:00 Sabato: 09:00 - 12:30 / Pomeriggio su appuntamento Domenica: Chiuso
Affiliato
Studio Canavese Per Le Imprese Sas
Via Casale, 2/C 10015 Ivrea (TO)

2026 Tecnocasa Franchising S.p.A. - P. IVA 08365160152 - Via Monte Bianco 60/A 20089 Rozzano (MI). Ogni agenzia ha un proprio titolare ed è autonoma. Privacy policy | Policy utilizzo | Cookie policy