Capannone in affitto

Agliè, Via Circonvallazione
€ 2.300 / mese
Prezzo aggiornato
3 locali 3 locali
800 Mq 800 Mq
1 bagno 1 bagno

Capannone in affitto

Agliè, Via Circonvallazione

Descrizione annuncio

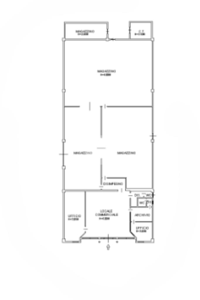
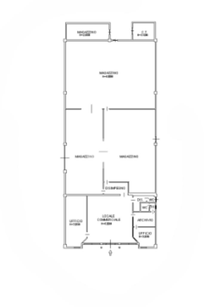
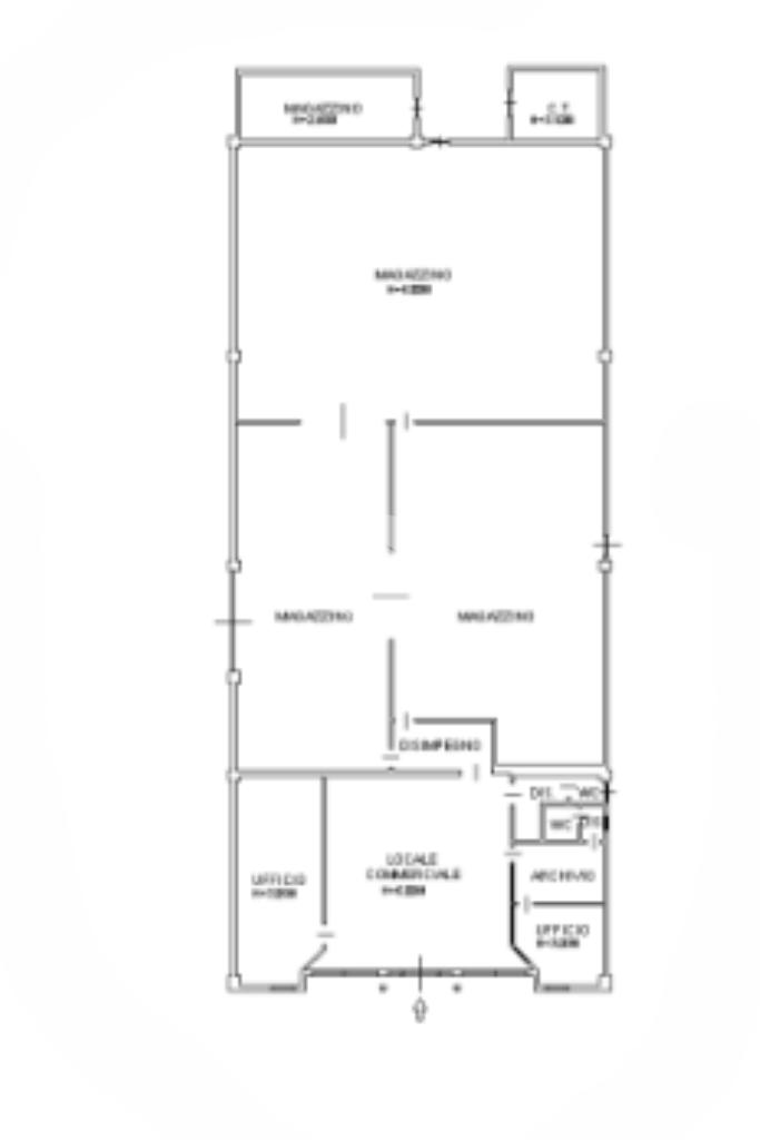
CAPANNONE IN AFFITTO AD AGLIÈ – VIA CIRCONVALLAZIONE

In zona comoda e ben visibile, caratterizzata da intenso passaggio, proponiamo in affitto capannone ad uso commerciale di circa 600 mq interni.

L’immobile offre spazi ampi e funzionali con tre magazzini comunicanti e un servizio igienico.

All’esterno, la proprietà dispone di una vasta area pertinenziale di circa 2.500 mq, oltre a terreni fronte strada per circa 700 mq, ideali per parcheggio, carico/scarico.

L’edificio è dotato di impianto fotovoltaico, riscaldamento e climatizzazione, elementi che garantiscono efficienza energetica e comfort durante tutto l’anno.

La soluzione si presta a molteplici utilizzi, risultando particolarmente adatta ad attività commerciali, artigianali o logistiche.

CARATTERISTICHE PRINCIPALI:

- Superficie interna: circa 600 mq

- Altezza capannone: 6 metri alla trave

- Portone interno automatico: 4m (L) x 5m (H)

- Portone esterno: 4,57 m (L) x 5,27 m (H)

- Area esterna pertinenziale: circa 2.500 mq

- Terreno fronte strada: circa 700 mq

- Riscaldamento e climatizzazione

Mostra tutto

Nelle vicinanze

Trasporto pubblico Trasporto pubblico
Aglie' (cond. Olivetti)
Aglie' (cond. Olivetti)
250 m
Agliè
Agliè
610 m
Ricariche auto elettriche Ricariche auto elettriche
Agliè Castello | EnelX
600 m
AGLIÈ Campodoneo | ENELX
710 m
Agliè Gula | EnelX
730 m
Agliè San Grato | EnelX
2,6 Km
Scuole Scuole
Scuola Primaria Statale di Agliè
820 m
Scuola elementare Giacomo Mattè-Trucco
2,0 Km
Farmacia Farmacia
Farmacia Ducale
730 m
Farmacia
2,0 Km
Negozi Negozi
Panetteria Pasticceria Alfonsi
400 m
L'Angolo
590 m
Panetteria Pasticceria Piccolo Forno
610 m
Rossoverdegiallo
650 m
Il Botteghino
840 m
Bar Bar
Palabar
1,7 Km
Antica società operaia
1,9 Km
Caffetteria Pasticceria Gianni
2,0 Km
Ristoranti Ristoranti
Solo Pizza
540 m
Trattoria Scudo di Francia
690 m
La Pulperia - Osteria y Bar de Tapas
1,0 Km
Agriturismo Cascina La Desiderata
1,2 Km
Monnalisa
1,6 Km
Mostra tutto

Caratteristiche

Rif.:
61158030
Piano:
Terra
Posti auto:
15
Condizionamento:
Autonomo
Ascensore:
No
Riscaldamento:
Autonomo
Mostra tutto
Prezzo Prezzo
€ 2.300 / mese
Spese annue Spese annue
€ 0

Altre caratteristiche

Descrizione dei locali
Bagno Con Finestra

Classe Energetica

A2
A2
A2
A2
A2
A2
A2
A2
A2
EP globale non rinnovabile:
182.66 kW h/m² anno
EP globale rinnovabile:
75.96 kW h/m² anno
EP invernale del fabbricato:
EP estiva del fabbricato:
Anno di costruzione:
1990
Riscaldamento:
Autonomo
Tipo impianto:
Ad aria
Tipo alimentazione:
GPL

Prezzo ridotto di €1 (100%%)

Ti interessa visionare l'immobile?

Fissa un appuntamento  Fissa un appuntamento

Richiedi informazioni

Clicca su Leggi per aprire l'informativa
* Questi campi sono obbligatori
Affiliato
Studio Canavese Per Le Imprese Sas
Via Casale, 2/C 10015 Ivrea (TO)

Il nostro staff


  • Davide Bertino
    Affiliato

  • Ophelia Mariotti
    Collaboratrice

  • Riccardo Ronza
    Affiliato

  • Elena Raso
    Affiliata
Via Casale, 2/C 10015 Ivrea (TO)
Zona: Canavese
Mostra su mappa
Orari: Lunedì: 09:00 - 12:30 / 14:30 - 19:00 Martedì: 09:00 - 12:30 / 14:30 - 19:00 Mercoledì: 09:00 - 12:30 / 14:30 - 19:00 Giovedì: 09:00 - 12:30 / 14:30 - 19:00 Venerdì: 09:00 - 12:30 / 14:30 - 19:00 Sabato: 09:00 - 12:30 / Pomeriggio su appuntamento Domenica: Chiuso
Affiliato
Studio Canavese Per Le Imprese Sas
Via Casale, 2/C 10015 Ivrea (TO)

2026 Tecnocasa Franchising S.p.A. - P. IVA 08365160152 - Via Monte Bianco 60/A 20089 Rozzano (MI). Ogni agenzia ha un proprio titolare ed è autonoma. Privacy policy | Policy utilizzo | Cookie policy